Rif: A4024
MILANO
MILANO - zona Bignami - Ponale
PER INFORMAZIONI E PER FISSARE UN APPUNTAMENTO IN UFFICIO, CONTATTARCI AL NUMERO 02/97.48.70.88 WWW.CONSULOVEST.IT
Proponiamo in vendita OTTIMO QUADRILOCALE ALL'ASTA!
Codice di riferimento: A4024
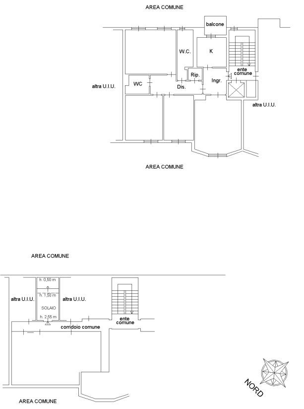
Proponiamo in vendita OTTIMO QUADRILOCALE ALL'ASTA, sito al piano sesto, di uno stabile di nove piani, realizzato antecedentemente al 1967.
L'immobile si trova in zona ben servita, a breve distanza dalla MM fermata BIGNAMI e PONALE.
L'appartamento è composto da ingresso, soggiorno, cucina, disimpegno, tre camere da letto, doppi servizi, ripostiglio e balcone, per una superficie totale di 125 mq.
Completa la soluzione vano solaio di pertinenza e box singolo di 15 mq..
IMMOBILE LIBERO.
L'asta è TELEMATICA e vi seguiremo in tutta la procedura.
Trattandosi di un immobile all'asta, IL PREZZO SI RIFERISCE ALL'OFFERTA MINIMA e potrà subire notevoli rialzi!
VERO AFFARE!
No agenzie, no intermediari, no collaborazioni.
Per la partecipazione in asta è necessario possedere il 10% di cauzione
Inoltre presso i nostri uffici abbiamo tante soluzioni con caratteristiche simili all'immobile di questo annuncio a prezzi vantaggiosi
Risparmia acquistando all'asta affidati agli esperti del settore, grazie alla nostra esperienza ventennale vi guideremo verso un acquisto sicuro e vantaggioso nel mondo delle aste
Compera all'asta a meno di un affitto. www.consulovest.it .
IL NOSTRO SERVIZIO PUÒ ESSERE ATTIVATO PRESSO I NOSTRI UFFICI DI CORBETTA E MILANO, OPPURE TELEFONICAMENTE.
Proponiamo in vendita OTTIMO QUADRILOCALE ALL'ASTA!
Codice di riferimento: A4024
Proponiamo in vendita OTTIMO QUADRILOCALE ALL'ASTA, sito al piano sesto, di uno stabile di nove piani, realizzato antecedentemente al 1967.
L'immobile si trova in zona ben servita, a breve distanza dalla MM fermata BIGNAMI e PONALE.
L'appartamento è composto da ingresso, soggiorno, cucina, disimpegno, tre camere da letto, doppi servizi, ripostiglio e balcone, per una superficie totale di 125 mq.
Completa la soluzione vano solaio di pertinenza e box singolo di 15 mq..
IMMOBILE LIBERO.
L'asta è TELEMATICA e vi seguiremo in tutta la procedura.
Trattandosi di un immobile all'asta, IL PREZZO SI RIFERISCE ALL'OFFERTA MINIMA e potrà subire notevoli rialzi!
VERO AFFARE!
No agenzie, no intermediari, no collaborazioni.
Per la partecipazione in asta è necessario possedere il 10% di cauzione
Inoltre presso i nostri uffici abbiamo tante soluzioni con caratteristiche simili all'immobile di questo annuncio a prezzi vantaggiosi
Risparmia acquistando all'asta affidati agli esperti del settore, grazie alla nostra esperienza ventennale vi guideremo verso un acquisto sicuro e vantaggioso nel mondo delle aste
Compera all'asta a meno di un affitto. www.consulovest.it .
IL NOSTRO SERVIZIO PUÒ ESSERE ATTIVATO PRESSO I NOSTRI UFFICI DI CORBETTA E MILANO, OPPURE TELEFONICAMENTE.
Consistenze
| Descrizione | Superficie | Sup. comm. |
|---|---|---|
| Principali | ||
| Immobile - 7° piano | 125 Mq | 125 Mqc |
| Box/Garage - seminterrato | 15 Mq | 8 Mqc |
| Totale | 133 Mqc | |







