Rif: A4450
MILANO
MILANO - zona Affori
PER INFORMAZIONI E PER FISSARE UN APPUNTAMENTO IN UFFICIO, CONTATTARCI AL NUMERO 02/97.48. 70.88 WWW. CONSULOVEST. IT
Proponiamo in vendita OTTIMO BILOCALE ALL'ASTA!
Codice di riferimento: A4450
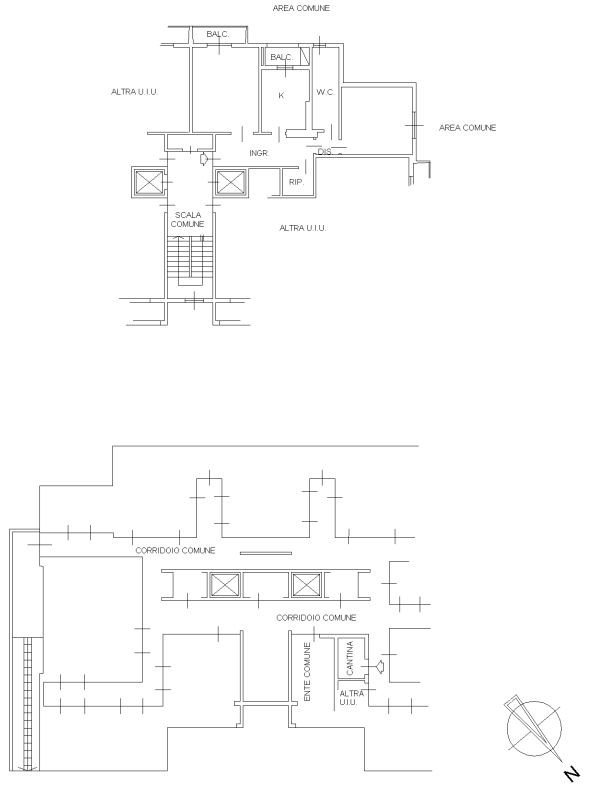
Proponiamo in vendita OTTIMO BILOCALE ALL'ASTA, sito al piano sesto di uno stabile multipiano realizzato antecedentemente al 1967.
L'immobile si trova in zona ben servita, a breve distanza dal passante ferroviario fermata QUARTO OGGIARO.
L'appartamento è composto da ingresso con corridoio, soggiorno, cucina, disimpegno, una camera da letto, ripostiglio, bagno e due balconi, per una superficie totale di 71 mq.
Presente inoltre vano cantina di pertinenza.
IMMOBILE LIBERO.
POSSIBILITA' DI ACQUISTO PRE-ASTA E SALDO E STRALCIO!
L'asta è TELEMATICA e vi seguiremo in tutta la procedura.
Trattandosi di un immobile all'asta, IL PREZZO SI RIFERISCE ALL'OFFERTA MINIMA e potrà subire notevoli rialzi!
Vero affare!
No agenzie, no intermediari, no collaborazioni.
Per la partecipazione in asta sara' necessario possedere il 10% di cauzione
Possibilita' di mutuo al 100% esempio rata mensile 30 anni: Eu. 612.95.
Inoltre presso i nostri uffici abbiamo tante soluzioni con caratteristiche simili all'immobile di questo annuncio a prezzi vantaggiosi
Risparmia acquistando all'asta affidati agli esperti del settore, grazie alla nostra esperienza ventennale vi guideremo verso un acquisto sicuro e vantaggioso nel mondo delle aste
Compera all'asta a meno di un affitto. www.consulovest.it
IL NOSTRO SERVIZIO PUÒ ESSERE ATTIVATO PRESSO I NOSTRI UFFICI DI CORBETTA E MILANO, OPPURE TELEFONICAMENTE.
Proponiamo in vendita OTTIMO BILOCALE ALL'ASTA!
Codice di riferimento: A4450
Proponiamo in vendita OTTIMO BILOCALE ALL'ASTA, sito al piano sesto di uno stabile multipiano realizzato antecedentemente al 1967.
L'immobile si trova in zona ben servita, a breve distanza dal passante ferroviario fermata QUARTO OGGIARO.
L'appartamento è composto da ingresso con corridoio, soggiorno, cucina, disimpegno, una camera da letto, ripostiglio, bagno e due balconi, per una superficie totale di 71 mq.
Presente inoltre vano cantina di pertinenza.
IMMOBILE LIBERO.
POSSIBILITA' DI ACQUISTO PRE-ASTA E SALDO E STRALCIO!
L'asta è TELEMATICA e vi seguiremo in tutta la procedura.
Trattandosi di un immobile all'asta, IL PREZZO SI RIFERISCE ALL'OFFERTA MINIMA e potrà subire notevoli rialzi!
Vero affare!
No agenzie, no intermediari, no collaborazioni.
Per la partecipazione in asta sara' necessario possedere il 10% di cauzione
Possibilita' di mutuo al 100% esempio rata mensile 30 anni: Eu. 612.95.
Inoltre presso i nostri uffici abbiamo tante soluzioni con caratteristiche simili all'immobile di questo annuncio a prezzi vantaggiosi
Risparmia acquistando all'asta affidati agli esperti del settore, grazie alla nostra esperienza ventennale vi guideremo verso un acquisto sicuro e vantaggioso nel mondo delle aste
Compera all'asta a meno di un affitto. www.consulovest.it
IL NOSTRO SERVIZIO PUÒ ESSERE ATTIVATO PRESSO I NOSTRI UFFICI DI CORBETTA E MILANO, OPPURE TELEFONICAMENTE.
Consistenze
| Descrizione | Superficie | Sup. comm. |
|---|---|---|
| Principali | ||
| Immobile - 6° piano | 71 Mq | 71 Mqc |
| Totale | 71 Mqc | |







