Rif: R25561B
JERAGO CON ORAGO
VARESE
PER INFORMAZIONI E PER FISSARE UN APPUNTAMENTO IN UFFICIO, CONTATTARCI AL NUMERO 02/97.48. 70.88 WWW. CONSULOVEST. IT
Proponiamo in vendita OTTIMO CAPANNONE ARTIGIANALE ALL'ASTA!
Codice di riferimento: R25561B
Proponiamo in vendita OTTIMO CAPANNONE ARTIGIANALE ALL'ASTA, su due livelli, realizzato nel 1980.
L'immobile si trova in zona principalmente industriale e periferica, poco distante dalla stazione ferroviaria.
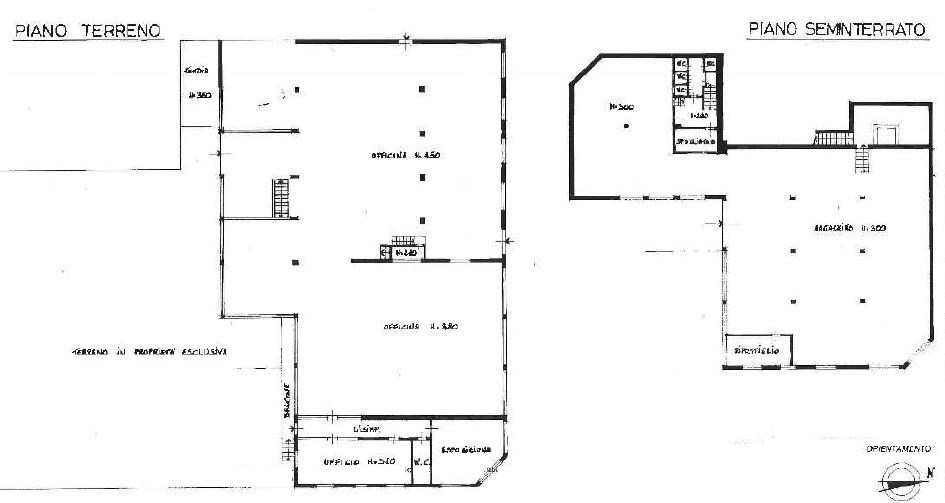
Il fabbricato è composto al piano terra da ampia area produttiva, per una superficie di 660mq.
Presenti inoltre uffici e servizi, per una superficie di 94 mq. e soppalco ripostiglio di 60 mq.
Al piano seminterrato presente magazzino di 477 mq.
Completa la soluzione cortile di 650 mq.
Si segnala che il fabbricato è locato con regolare contratto d'affitto 6+6, con prima scadenza il 15/11/2028, per un canone annuo pari a Eu. 18.000,00.
Si segnala la disponibilità di un altro lotto composto da capannone di 812 mq. + abitazione di 119,50 mq., con un'offerta minima a partire da Eu. 166.912,00.
L'asta è TELEMATICA e vi seguiremo in tutta la procedura.
Trattandosi di un immobile all'asta, IL PREZZO SI RIFERISCE ALL'OFFERTA MINIMA e potrà subire notevoli rialzi!
Vero affare!
No agenzie, no intermediari, no collaborazioni.
Per la partecipazione in asta sara' necessario possedere il 10% di cauzione
Inoltre presso i nostri uffici abbiamo tante soluzioni con caratteristiche simili all'immobile di questo annuncio a prezzi vantaggiosi
Risparmia acquistando all'asta affidati agli esperti del settore, grazie alla nostra esperienza ventennale vi guideremo verso un acquisto sicuro e vantaggioso nel mondo delle aste
Compera all'asta a meno di un affitto. www.consulovest.it
IL NOSTRO SERVIZIO PUÒ ESSERE ATTIVATO PRESSO I NOSTRI UFFICI DI CORBETTA E MILANO, OPPURE TELEFONICAMENTE.
Proponiamo in vendita OTTIMO CAPANNONE ARTIGIANALE ALL'ASTA!
Codice di riferimento: R25561B
Proponiamo in vendita OTTIMO CAPANNONE ARTIGIANALE ALL'ASTA, su due livelli, realizzato nel 1980.
L'immobile si trova in zona principalmente industriale e periferica, poco distante dalla stazione ferroviaria.
Il fabbricato è composto al piano terra da ampia area produttiva, per una superficie di 660mq.
Presenti inoltre uffici e servizi, per una superficie di 94 mq. e soppalco ripostiglio di 60 mq.
Al piano seminterrato presente magazzino di 477 mq.
Completa la soluzione cortile di 650 mq.
Si segnala che il fabbricato è locato con regolare contratto d'affitto 6+6, con prima scadenza il 15/11/2028, per un canone annuo pari a Eu. 18.000,00.
Si segnala la disponibilità di un altro lotto composto da capannone di 812 mq. + abitazione di 119,50 mq., con un'offerta minima a partire da Eu. 166.912,00.
L'asta è TELEMATICA e vi seguiremo in tutta la procedura.
Trattandosi di un immobile all'asta, IL PREZZO SI RIFERISCE ALL'OFFERTA MINIMA e potrà subire notevoli rialzi!
Vero affare!
No agenzie, no intermediari, no collaborazioni.
Per la partecipazione in asta sara' necessario possedere il 10% di cauzione
Inoltre presso i nostri uffici abbiamo tante soluzioni con caratteristiche simili all'immobile di questo annuncio a prezzi vantaggiosi
Risparmia acquistando all'asta affidati agli esperti del settore, grazie alla nostra esperienza ventennale vi guideremo verso un acquisto sicuro e vantaggioso nel mondo delle aste
Compera all'asta a meno di un affitto. www.consulovest.it
IL NOSTRO SERVIZIO PUÒ ESSERE ATTIVATO PRESSO I NOSTRI UFFICI DI CORBETTA E MILANO, OPPURE TELEFONICAMENTE.
Consistenze
| Descrizione | Superficie | Sup. comm. |
|---|---|---|
| Principali | ||
| Capannone - piano terra | 1.087 Mq | 1.087 Mqc |
| Totale | 1.087 Mqc | |







