Rif: X26073
VIGEVANO
PAVIA
PER INFORMAZIONI E PER FISSARE UN APPUNTAMENTO IN UFFICIO, CONTATTARCI AL NUMERO 02/97.48. 70.88 WWW. CONSULOVEST. IT
Proponiamo in vendita OTTIMO QUADRILOCALE ALL'ASTA!
Codice di riferimento: X26073
Proponiamo in vendita OTTIMO QUADRILOCALE ALL'ASTA, sito al piano quarto di uno stabile, realizzato antecedentemente al 1967.
L'immobile, ristrutturato nel 2006, si trova in zona molto centrale e ben servita, a breve distanza dalla MM ed FS fermata PORTA GENOVA e a pochi passi dalla cornice della Darsena!
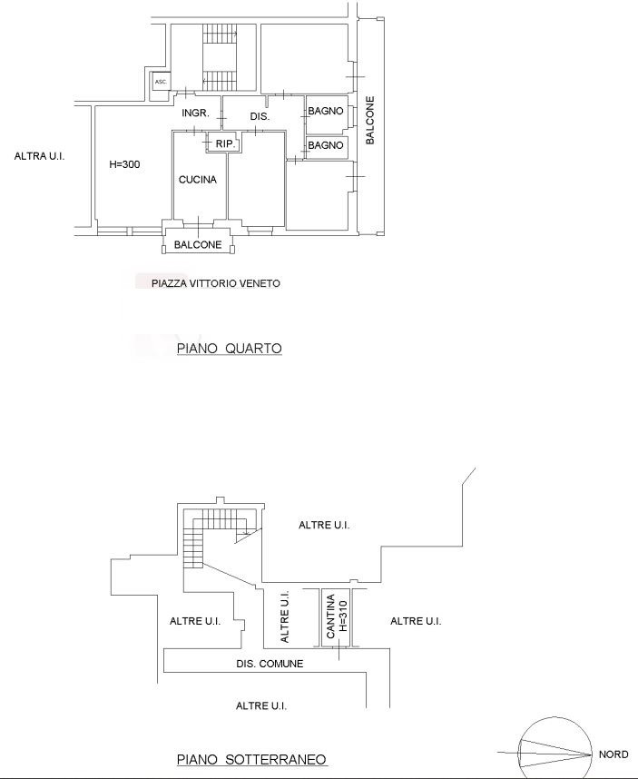
L'appartamento è composto da soggiorno, cucina, corridoio, tre camere da letto e bagno, per una superficie di 116,40 mq.
Presenti inoltre due balconi, rispettivamente di 15,70 mq. e 4,70 mq.
Presente inoltre cantina di 4,30 mq.
L'asta è TELEMATICA e vi seguiremo in tutta la procedura.
Trattandosi di un immobile all'asta, IL PREZZO SI RIFERISCE ALL'OFFERTA MINIMA e potrà subire notevoli rialzi!
Vero affare!
No agenzie, no intermediari, no collaborazioni.
Per la partecipazione in asta sara' necessario possedere il 10% di cauzione
Inoltre presso i nostri uffici abbiamo tante soluzioni con caratteristiche simili all'immobile di questo annuncio a prezzi vantaggiosi
Risparmia acquistando all'asta affidati agli esperti del settore, grazie alla nostra esperienza ventennale vi guideremo verso un acquisto sicuro e vantaggioso nel mondo delle aste
Compera all'asta a meno di un affitto. www.consulovest.it
IL NOSTRO SERVIZIO PUÒ ESSERE ATTIVATO PRESSO I NOSTRI UFFICI DI CORBETTA E MILANO, OPPURE TELEFONICAMENTE.
Proponiamo in vendita OTTIMO QUADRILOCALE ALL'ASTA!
Codice di riferimento: X26073
Proponiamo in vendita OTTIMO QUADRILOCALE ALL'ASTA, sito al piano quarto di uno stabile, realizzato antecedentemente al 1967.
L'immobile, ristrutturato nel 2006, si trova in zona molto centrale e ben servita, a breve distanza dalla MM ed FS fermata PORTA GENOVA e a pochi passi dalla cornice della Darsena!
L'appartamento è composto da soggiorno, cucina, corridoio, tre camere da letto e bagno, per una superficie di 116,40 mq.
Presenti inoltre due balconi, rispettivamente di 15,70 mq. e 4,70 mq.
Presente inoltre cantina di 4,30 mq.
L'asta è TELEMATICA e vi seguiremo in tutta la procedura.
Trattandosi di un immobile all'asta, IL PREZZO SI RIFERISCE ALL'OFFERTA MINIMA e potrà subire notevoli rialzi!
Vero affare!
No agenzie, no intermediari, no collaborazioni.
Per la partecipazione in asta sara' necessario possedere il 10% di cauzione
Inoltre presso i nostri uffici abbiamo tante soluzioni con caratteristiche simili all'immobile di questo annuncio a prezzi vantaggiosi
Risparmia acquistando all'asta affidati agli esperti del settore, grazie alla nostra esperienza ventennale vi guideremo verso un acquisto sicuro e vantaggioso nel mondo delle aste
Compera all'asta a meno di un affitto. www.consulovest.it
IL NOSTRO SERVIZIO PUÒ ESSERE ATTIVATO PRESSO I NOSTRI UFFICI DI CORBETTA E MILANO, OPPURE TELEFONICAMENTE.
Consistenze
| Descrizione | Superficie | Sup. comm. |
|---|---|---|
| Principali | ||
| Immobile - 4° piano | 116 Mq | 116 Mqc |
| Balcone - 4° piano | 16 Mq | 5 Mqc |
| Balcone - 4° piano | 5 Mq | 2 Mqc |
| Cantina - seminterrato | 4 Mq | 1 Mqc |
| Totale | 124 Mqc | |







