Rif: X26831
CERTOSA DI PAVIA
PAVIA
PER INFORMAZIONI E PER FISSARE UN APPUNTAMENTO IN UFFICIO, CONTATTARCI AL NUMERO 02/97.48. 70.88 WWW. CONSULOVEST. IT
Proponiamo in vendita SOLUZIONE SEMINDIPENDENTE ALL'ASTA!
Codice di riferimento: X26831
Proponiamo in vendita SOLUZIONE SEMINDIPENDENTE ALL'ASTA, su tre livelli, in contesto di corte realizzato antecedentemente al 1967.
L'immobile si trova in zona residenziale e ben servita.
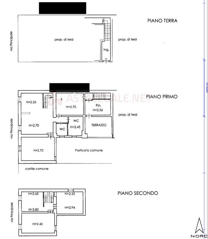
L'immobile è composto al piano terra da portico d'ingresso e scala che conduce al piano superiore;
Al piano primo presenti soggiorno con cucina, disimpegno, ripostiglio, una camera da letto e doppi servizi; oltre che veranda di 20 mq.
Al piano secondo sottotetto presenti tre locali sgombero, per una superficie totale di 193,57 mq.
Completa la soluzione area esterna di pertinenza.
L'asta è TELEMATICA e vi seguiremo in tutta la procedura.
Trattandosi di un immobile all'asta, IL PREZZO SI RIFERISCE ALL'OFFERTA MINIMA e potrà subire notevoli rialzi!
Vero affare!
No agenzie, no intermediari, no collaborazioni.
Per la partecipazione in asta sara' necessario possedere il 10% di cauzione
Inoltre presso i nostri uffici abbiamo tante soluzioni con caratteristiche simili all'immobile di questo annuncio a prezzi vantaggiosi
Risparmia acquistando all'asta affidati agli esperti del settore, grazie alla nostra esperienza ventennale vi guideremo verso un acquisto sicuro e vantaggioso nel mondo delle aste
Compera all'asta a meno di un affitto. www.consulovest.it
IL NOSTRO SERVIZIO PUÒ ESSERE ATTIVATO PRESSO I NOSTRI UFFICI DI CORBETTA E MILANO, OPPURE TELEFONICAMENTE.
Proponiamo in vendita SOLUZIONE SEMINDIPENDENTE ALL'ASTA!
Codice di riferimento: X26831
Proponiamo in vendita SOLUZIONE SEMINDIPENDENTE ALL'ASTA, su tre livelli, in contesto di corte realizzato antecedentemente al 1967.
L'immobile si trova in zona residenziale e ben servita.
L'immobile è composto al piano terra da portico d'ingresso e scala che conduce al piano superiore;
Al piano primo presenti soggiorno con cucina, disimpegno, ripostiglio, una camera da letto e doppi servizi; oltre che veranda di 20 mq.
Al piano secondo sottotetto presenti tre locali sgombero, per una superficie totale di 193,57 mq.
Completa la soluzione area esterna di pertinenza.
L'asta è TELEMATICA e vi seguiremo in tutta la procedura.
Trattandosi di un immobile all'asta, IL PREZZO SI RIFERISCE ALL'OFFERTA MINIMA e potrà subire notevoli rialzi!
Vero affare!
No agenzie, no intermediari, no collaborazioni.
Per la partecipazione in asta sara' necessario possedere il 10% di cauzione
Inoltre presso i nostri uffici abbiamo tante soluzioni con caratteristiche simili all'immobile di questo annuncio a prezzi vantaggiosi
Risparmia acquistando all'asta affidati agli esperti del settore, grazie alla nostra esperienza ventennale vi guideremo verso un acquisto sicuro e vantaggioso nel mondo delle aste
Compera all'asta a meno di un affitto. www.consulovest.it
IL NOSTRO SERVIZIO PUÒ ESSERE ATTIVATO PRESSO I NOSTRI UFFICI DI CORBETTA E MILANO, OPPURE TELEFONICAMENTE.
Consistenze
| Descrizione | Superficie | Sup. comm. |
|---|---|---|
| Principali | ||
| Immobile - piano terra | 194 Mq | 194 Mqc |
| Totale | 194 Mqc | |







