Rif: X26107
CALVIGNASCO
MILANO
PER INFORMAZIONI E PER FISSARE UN APPUNTAMENTO IN UFFICIO, CONTATTARCI AL NUMERO 02/97.48. 70.88 WWW. CONSULOVEST. IT
Proponiamo in vendita OTTIMO IMMOBILE SU DUE LIVELLI ALL'ASTA!
Codice di riferimento: X26107
Proponiamo in vendita OTTIMO IMMOBILE SU DUE LIVELLI ALL'ASTA, sito al piano terra e primo, di un contesto di corte realizzato nel 1980.
L'immobile si trova in zona residenziale e ben servita.
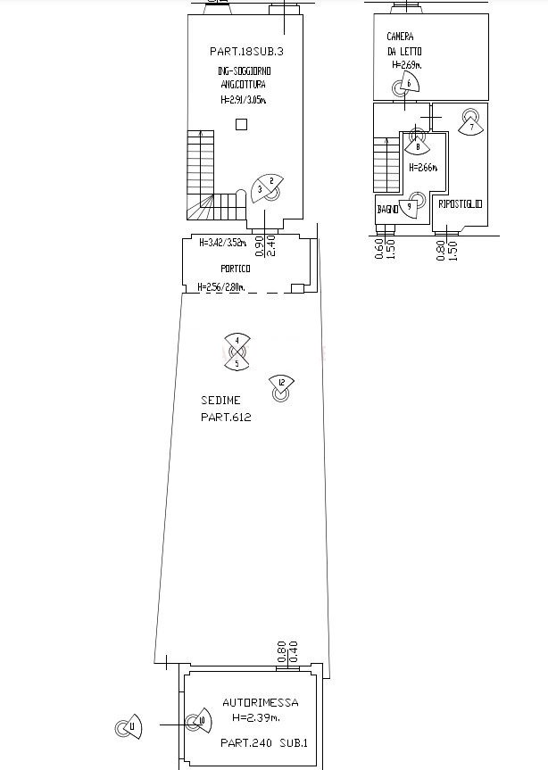
L'appartamento è composto al piano terra portico di 7 mq., soggiorno con angolo cottura e scala di accesso al piano superiore;
Al piano primo presente, una camera da letto, un locale ripostiglio e bagno, per una superficie totale di 87 mq.
Presente inoltre box di 15 mq.
Completa la soluzione cortile ad uso esclusivo di 71 mq.
L'asta è TELEMATICA e vi seguiremo in tutta la procedura.
Trattandosi di un immobile all'asta, IL PREZZO SI RIFERISCE ALL'OFFERTA MINIMA e potrà subire notevoli rialzi!
Vero affare!
No agenzie, no intermediari, no collaborazioni.
Per la partecipazione in asta sara' necessario possedere il 10% di cauzione
Inoltre presso i nostri uffici abbiamo tante soluzioni con caratteristiche simili all'immobile di questo annuncio a prezzi vantaggiosi
Risparmia acquistando all'asta affidati agli esperti del settore, grazie alla nostra esperienza ventennale vi guideremo verso un acquisto sicuro e vantaggioso nel mondo delle aste
Compera all'asta a meno di un affitto. www.consulovest.it
IL NOSTRO SERVIZIO PUÒ ESSERE ATTIVATO PRESSO I NOSTRI UFFICI DI CORBETTA E MILANO, OPPURE TELEFONICAMENTE.
Proponiamo in vendita OTTIMO IMMOBILE SU DUE LIVELLI ALL'ASTA!
Codice di riferimento: X26107
Proponiamo in vendita OTTIMO IMMOBILE SU DUE LIVELLI ALL'ASTA, sito al piano terra e primo, di un contesto di corte realizzato nel 1980.
L'immobile si trova in zona residenziale e ben servita.
L'appartamento è composto al piano terra portico di 7 mq., soggiorno con angolo cottura e scala di accesso al piano superiore;
Al piano primo presente, una camera da letto, un locale ripostiglio e bagno, per una superficie totale di 87 mq.
Presente inoltre box di 15 mq.
Completa la soluzione cortile ad uso esclusivo di 71 mq.
L'asta è TELEMATICA e vi seguiremo in tutta la procedura.
Trattandosi di un immobile all'asta, IL PREZZO SI RIFERISCE ALL'OFFERTA MINIMA e potrà subire notevoli rialzi!
Vero affare!
No agenzie, no intermediari, no collaborazioni.
Per la partecipazione in asta sara' necessario possedere il 10% di cauzione
Inoltre presso i nostri uffici abbiamo tante soluzioni con caratteristiche simili all'immobile di questo annuncio a prezzi vantaggiosi
Risparmia acquistando all'asta affidati agli esperti del settore, grazie alla nostra esperienza ventennale vi guideremo verso un acquisto sicuro e vantaggioso nel mondo delle aste
Compera all'asta a meno di un affitto. www.consulovest.it
IL NOSTRO SERVIZIO PUÒ ESSERE ATTIVATO PRESSO I NOSTRI UFFICI DI CORBETTA E MILANO, OPPURE TELEFONICAMENTE.
Consistenze
| Descrizione | Superficie | Sup. comm. |
|---|---|---|
| Principali | ||
| Immobile - piano terra | 87 Mq | 87 Mqc |
| Esterno - piano terra | 71 Mq | 7 Mqc |
| Totale | 94 Mqc | |







