Rif: A5271
CORSICO
MILANO
PER INFORMAZIONI E PER FISSARE UN APPUNTAMENTO IN UFFICIO, CONTATTARCI AL NUMERO 02/97.48. 70.88 WWW. CONSULOVEST. IT
Proponiamo in vendita OTTIMO BILOCALE ALL'ASTA!
Codice di riferimento: A5271
Proponiamo in vendita OTTIMO BILOCALE ALL'ASTA, sito al piano settimo, di uno stabile multipiano, realizzato antecedentemente al 1967.
L'immobile si trova in zona principalmente residenziale e ben servita.
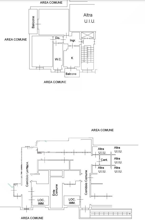
L'appartamento è composto da ingresso, soggiorno, cucina, disimpegno, due camere da letto, bagno e due balconi, per una superficie totale di 74 mq.
Presente inoltre cantina di pertinenza.
IMMOBILE LIBERO.
L'asta è TELEMATICA e vi seguiremo in tutta la procedura.
Trattandosi di un immobile all'asta, IL PREZZO SI RIFERISCE ALL'OFFERTA MINIMA e potrà subire notevoli rialzi!
Vero affare!
No agenzie, no intermediari, no collaborazioni.
Per la partecipazione in asta sara' necessario possedere il 10% di cauzione
Inoltre presso i nostri uffici abbiamo tante soluzioni con caratteristiche simili all'immobile di questo annuncio a prezzi vantaggiosi
Risparmia acquistando all'asta affidati agli esperti del settore, grazie alla nostra esperienza ventennale vi guideremo verso un acquisto sicuro e vantaggioso nel mondo delle aste
Compera all'asta a meno di un affitto. www.consulovest.it
IL NOSTRO SERVIZIO PUÒ ESSERE ATTIVATO PRESSO I NOSTRI UFFICI DI CORBETTA E MILANO, OPPURE TELEFONICAMENTE.
Proponiamo in vendita OTTIMO BILOCALE ALL'ASTA!
Codice di riferimento: A5271
Proponiamo in vendita OTTIMO BILOCALE ALL'ASTA, sito al piano settimo, di uno stabile multipiano, realizzato antecedentemente al 1967.
L'immobile si trova in zona principalmente residenziale e ben servita.
L'appartamento è composto da ingresso, soggiorno, cucina, disimpegno, due camere da letto, bagno e due balconi, per una superficie totale di 74 mq.
Presente inoltre cantina di pertinenza.
IMMOBILE LIBERO.
L'asta è TELEMATICA e vi seguiremo in tutta la procedura.
Trattandosi di un immobile all'asta, IL PREZZO SI RIFERISCE ALL'OFFERTA MINIMA e potrà subire notevoli rialzi!
Vero affare!
No agenzie, no intermediari, no collaborazioni.
Per la partecipazione in asta sara' necessario possedere il 10% di cauzione
Inoltre presso i nostri uffici abbiamo tante soluzioni con caratteristiche simili all'immobile di questo annuncio a prezzi vantaggiosi
Risparmia acquistando all'asta affidati agli esperti del settore, grazie alla nostra esperienza ventennale vi guideremo verso un acquisto sicuro e vantaggioso nel mondo delle aste
Compera all'asta a meno di un affitto. www.consulovest.it
IL NOSTRO SERVIZIO PUÒ ESSERE ATTIVATO PRESSO I NOSTRI UFFICI DI CORBETTA E MILANO, OPPURE TELEFONICAMENTE.
Consistenze
| Descrizione | Superficie | Sup. comm. |
|---|---|---|
| Principali | ||
| Immobile - 7° piano | 74 Mq | 74 Mqc |
| Totale | 74 Mqc | |







