Rif: X26261
LEGNANO
MILANO - zona Legnarello
PER INFORMAZIONI E PER FISSARE UN APPUNTAMENTO IN UFFICIO, CONTATTARCI AL NUMERO 02/97.48. 70.88 WWW. CONSULOVEST. IT
Proponiamo in vendita SOLUZIONE SEMINDIPENDENTE ALL'ASTA!
Codice di riferimento: X26261
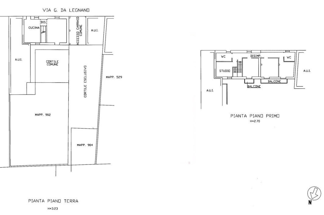
Proponiamo in vendita SOLUZIONE SEMINDIPENDENTE ALL'ASTA, su due livelli, piano terra e primo, di un contesto di corte realizzato antecedentemente al 1967.
L'immobile, ristrutturato nel 2010, si trova in zona residenziale e ben servita.
L'appartamento è composto al piano primo da soggiorno con angolo cottura;
Al piano primo presenti quattro camere da letto, disimpegno e due bagni, per una superficie totale di 154 mq.
Presente inoltre tre balconi, per una superficie di 6,85 mq.
Completano la soluzione cortile di 114,50 mq. e box doppio .
L'asta è TELEMATICA e vi seguiremo in tutta la procedura.
Trattandosi di un immobile all'asta, IL PREZZO SI RIFERISCE ALL'OFFERTA MINIMA e potrà subire notevoli rialzi!
Vero affare!
No agenzie, no intermediari, no collaborazioni.
Per la partecipazione in asta sara' necessario possedere il 10% di cauzione
Inoltre presso i nostri uffici abbiamo tante soluzioni con caratteristiche simili all'immobile di questo annuncio a prezzi vantaggiosi
Risparmia acquistando all'asta affidati agli esperti del settore, grazie alla nostra esperienza ventennale vi guideremo verso un acquisto sicuro e vantaggioso nel mondo delle aste
Compera all'asta a meno di un affitto. www.consulovest.it
IL NOSTRO SERVIZIO PUÒ ESSERE ATTIVATO PRESSO I NOSTRI UFFICI DI CORBETTA E MILANO, OPPURE TELEFONICAMENTE.
Proponiamo in vendita SOLUZIONE SEMINDIPENDENTE ALL'ASTA!
Codice di riferimento: X26261
Proponiamo in vendita SOLUZIONE SEMINDIPENDENTE ALL'ASTA, su due livelli, piano terra e primo, di un contesto di corte realizzato antecedentemente al 1967.
L'immobile, ristrutturato nel 2010, si trova in zona residenziale e ben servita.
L'appartamento è composto al piano primo da soggiorno con angolo cottura;
Al piano primo presenti quattro camere da letto, disimpegno e due bagni, per una superficie totale di 154 mq.
Presente inoltre tre balconi, per una superficie di 6,85 mq.
Completano la soluzione cortile di 114,50 mq. e box doppio .
L'asta è TELEMATICA e vi seguiremo in tutta la procedura.
Trattandosi di un immobile all'asta, IL PREZZO SI RIFERISCE ALL'OFFERTA MINIMA e potrà subire notevoli rialzi!
Vero affare!
No agenzie, no intermediari, no collaborazioni.
Per la partecipazione in asta sara' necessario possedere il 10% di cauzione
Inoltre presso i nostri uffici abbiamo tante soluzioni con caratteristiche simili all'immobile di questo annuncio a prezzi vantaggiosi
Risparmia acquistando all'asta affidati agli esperti del settore, grazie alla nostra esperienza ventennale vi guideremo verso un acquisto sicuro e vantaggioso nel mondo delle aste
Compera all'asta a meno di un affitto. www.consulovest.it
IL NOSTRO SERVIZIO PUÒ ESSERE ATTIVATO PRESSO I NOSTRI UFFICI DI CORBETTA E MILANO, OPPURE TELEFONICAMENTE.
Consistenze
| Descrizione | Superficie | Sup. comm. |
|---|---|---|
| Principali | ||
| Immobile - piano terra | 154 Mq | 154 Mqc |
| Balcone - 1° piano | 7 Mq | 2 Mqc |
| Esterno - piano terra | 114 Mq | 11 Mqc |
| Box/Garage - piano terra | 35 Mq | 18 Mqc |
| Totale | 185 Mqc | |







