Rif: X26797
MILANO
MILANO - zona Crescenzago
PER INFORMAZIONI E PER FISSARE UN APPUNTAMENTO IN UFFICIO, CONTATTARCI AL NUMERO 02/97.48. 70.88 WWW. CONSULOVEST. IT
Proponiamo OTTIMO LABORATORIO OPEN SPACE ALL'ASTA!
Codice di riferimento: X26797
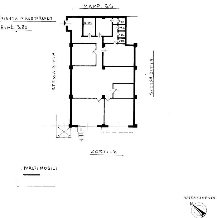
Proponiamo in vendita OTTIMO LABORATORIO OPEN SPACE ALL'ASTA, con due accesso al piano terra, in stabile di cinque piani, realizzato nel 1986.
L'immobile si trova in zona ben servita, a breve distanza dalla MM fermata CIMIANO.
Il laboratorio è composto da ingresso con ampio ambiente open space, disimpegno, zona di servizio con quattro bagni e due antibagni, per una superficie totale di 290 mq.
L'asta è TELEMATICA e vi seguiremo in tutta la procedura.
Trattandosi di un immobile all'asta, IL PREZZO SI RIFERISCE ALL'OFFERTA MINIMA e potrà subire notevoli rialzi!
Vero affare!
No agenzie, no intermediari, no collaborazioni.
Per la partecipazione in asta sara' necessario possedere il 10% di cauzione
Inoltre presso i nostri uffici abbiamo tante soluzioni con caratteristiche simili all'immobile di questo annuncio a prezzi vantaggiosi
Risparmia acquistando all'asta affidati agli esperti del settore, grazie alla nostra esperienza ventennale vi guideremo verso un acquisto sicuro e vantaggioso nel mondo delle aste
Compera all'asta a meno di un affitto. www.consulovest.it
IL NOSTRO SERVIZIO PUÒ ESSERE ATTIVATO PRESSO I NOSTRI UFFICI DI CORBETTA E MILANO, OPPURE TELEFONICAMENTE.
Proponiamo OTTIMO LABORATORIO OPEN SPACE ALL'ASTA!
Codice di riferimento: X26797
Proponiamo in vendita OTTIMO LABORATORIO OPEN SPACE ALL'ASTA, con due accesso al piano terra, in stabile di cinque piani, realizzato nel 1986.
L'immobile si trova in zona ben servita, a breve distanza dalla MM fermata CIMIANO.
Il laboratorio è composto da ingresso con ampio ambiente open space, disimpegno, zona di servizio con quattro bagni e due antibagni, per una superficie totale di 290 mq.
L'asta è TELEMATICA e vi seguiremo in tutta la procedura.
Trattandosi di un immobile all'asta, IL PREZZO SI RIFERISCE ALL'OFFERTA MINIMA e potrà subire notevoli rialzi!
Vero affare!
No agenzie, no intermediari, no collaborazioni.
Per la partecipazione in asta sara' necessario possedere il 10% di cauzione
Inoltre presso i nostri uffici abbiamo tante soluzioni con caratteristiche simili all'immobile di questo annuncio a prezzi vantaggiosi
Risparmia acquistando all'asta affidati agli esperti del settore, grazie alla nostra esperienza ventennale vi guideremo verso un acquisto sicuro e vantaggioso nel mondo delle aste
Compera all'asta a meno di un affitto. www.consulovest.it
IL NOSTRO SERVIZIO PUÒ ESSERE ATTIVATO PRESSO I NOSTRI UFFICI DI CORBETTA E MILANO, OPPURE TELEFONICAMENTE.
Consistenze
| Descrizione | Superficie | Sup. comm. |
|---|---|---|
| Principali | ||
| Laboratorio - piano terra | 290 Mq | 290 Mqc |
| Totale | 290 Mqc | |







