Rif: X26871
CASTANO PRIMO
MILANO
PER INFORMAZIONI E PER FISSARE UN APPUNTAMENTO IN UFFICIO, CONTATTARCI AL NUMERO 02/97.48. 70.88 WWW. CONSULOVEST. IT
Proponiamo in vendita OTTIMO FABBRICATO COMMERCIALE ALL'ASTA!
Codice di riferimento: X26871
Proponiamo in vendita OTTIMO FABBRICATO COMMERCIALE ALL'ASTA, sito al piano rialzato, ristrutturato nel 2005.
L'immobile si trova in zona principalmente industriale, a breve distanza dalla stazione ferroviaria.
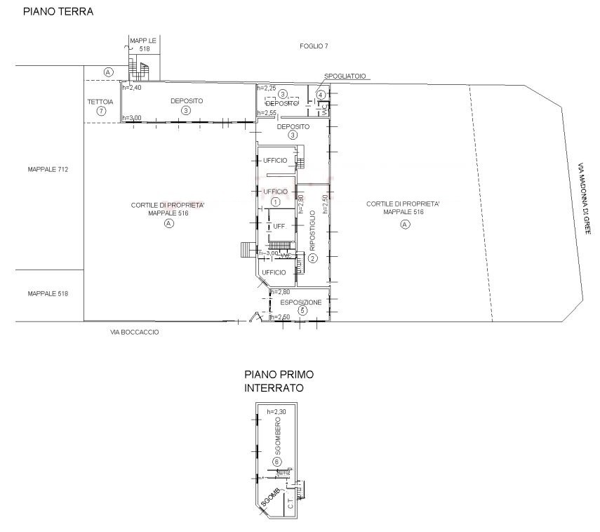
Il fabbricato è composto da blocco uffici al piano rialzato, area esposizione e ripostiglio;
Presenti inoltre cantina, due locali deposito e deposito mezzi, per una superficie totale di 626 mq.
Si segnala che l'immobile è locato con regolare contratto d'affitto 6+6, con scadenza il 31-12-2027 per un canone annuo pari a Eu. 26.200,00.
L'asta è TELEMATICA e vi seguiremo in tutta la procedura.
Trattandosi di un immobile all'asta, IL PREZZO SI RIFERISCE ALL'OFFERTA MINIMA e potrà subire notevoli rialzi!
Vero affare!
No agenzie, no intermediari, no collaborazioni.
Per la partecipazione in asta sara' necessario possedere il 10% di cauzione
Inoltre presso i nostri uffici abbiamo tante soluzioni con caratteristiche simili all'immobile di questo annuncio a prezzi vantaggiosi
Risparmia acquistando all'asta affidati agli esperti del settore, grazie alla nostra esperienza ventennale vi guideremo verso un acquisto sicuro e vantaggioso nel mondo delle aste
Compera all'asta a meno di un affitto. www.consulovest.it
IL NOSTRO SERVIZIO PUÒ ESSERE ATTIVATO PRESSO I NOSTRI UFFICI DI CORBETTA E MILANO, OPPURE TELEFONICAMENTE.
Proponiamo in vendita OTTIMO FABBRICATO COMMERCIALE ALL'ASTA!
Codice di riferimento: X26871
Proponiamo in vendita OTTIMO FABBRICATO COMMERCIALE ALL'ASTA, sito al piano rialzato, ristrutturato nel 2005.
L'immobile si trova in zona principalmente industriale, a breve distanza dalla stazione ferroviaria.
Il fabbricato è composto da blocco uffici al piano rialzato, area esposizione e ripostiglio;
Presenti inoltre cantina, due locali deposito e deposito mezzi, per una superficie totale di 626 mq.
Si segnala che l'immobile è locato con regolare contratto d'affitto 6+6, con scadenza il 31-12-2027 per un canone annuo pari a Eu. 26.200,00.
L'asta è TELEMATICA e vi seguiremo in tutta la procedura.
Trattandosi di un immobile all'asta, IL PREZZO SI RIFERISCE ALL'OFFERTA MINIMA e potrà subire notevoli rialzi!
Vero affare!
No agenzie, no intermediari, no collaborazioni.
Per la partecipazione in asta sara' necessario possedere il 10% di cauzione
Inoltre presso i nostri uffici abbiamo tante soluzioni con caratteristiche simili all'immobile di questo annuncio a prezzi vantaggiosi
Risparmia acquistando all'asta affidati agli esperti del settore, grazie alla nostra esperienza ventennale vi guideremo verso un acquisto sicuro e vantaggioso nel mondo delle aste
Compera all'asta a meno di un affitto. www.consulovest.it
IL NOSTRO SERVIZIO PUÒ ESSERE ATTIVATO PRESSO I NOSTRI UFFICI DI CORBETTA E MILANO, OPPURE TELEFONICAMENTE.
Consistenze
| Descrizione | Superficie | Sup. comm. |
|---|---|---|
| Principali | ||
| Ufficio - piano rialzato | 626 Mq | 626 Mqc |
| Totale | 626 Mqc | |







