Rif: X26829
MARIANO COMENSE
COMO
PER INFORMAZIONI E PER FISSARE UN APPUNTAMENTO IN UFFICIO, CONTATTARCI AL NUMERO 02/97.48. 70.88 WWW. CONSULOVEST. IT
Proponiamo TRILOCALE DA ULTIMARE ALL'ASTA!
Codice di riferimento: X26829
Proponiamo TRILOCALE DA ULTIMARE ALL'ASTA, sito al piano primo di una palazzina di sei piani, realizzata nel 2008.
L'immobile, con finiture da ultimare, si trova in zona residenziale ben servita, in contesto di nuove costruzioni.
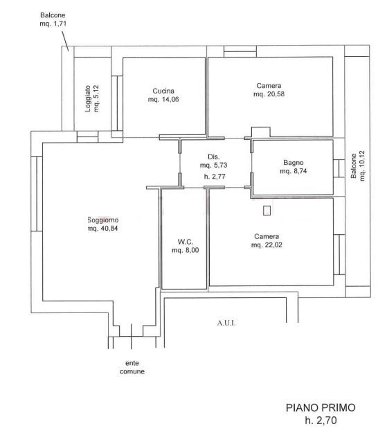
L'appartamento è composto da soggiorno, cucina, disimpegno, due camere da letto e doppi servizi, oltre che balcone e loggiato, per una superficie totale di 136,92 mq.
Completano la soluzione box doppio e cantina di 3 mq.
IMMOBILE LIBERO / DA ULTIMARE.
Si segnala che eventuali oneri per il completamento ed il ripristino del progetto originario, saranno a cura dell'aggiudicatario.
L'asta è TELEMATICA e vi seguiremo in tutta la procedura.
Trattandosi di un immobile all'asta, IL PREZZO SI RIFERISCE ALL'OFFERTA MINIMA e potrà subire notevoli rialzi!
Vero affare!
No agenzie, no intermediari, no collaborazioni.
Per la partecipazione in asta sara' necessario possedere il 10% di cauzione
Inoltre presso i nostri uffici abbiamo tante soluzioni con caratteristiche simili all'immobile di questo annuncio a prezzi vantaggiosi
Risparmia acquistando all'asta affidati agli esperti del settore, grazie alla nostra esperienza ventennale vi guideremo verso un acquisto sicuro e vantaggioso nel mondo delle aste
Compera all'asta a meno di un affitto. www.consulovest.it
IL NOSTRO SERVIZIO PUÒ ESSERE ATTIVATO PRESSO I NOSTRI UFFICI DI CORBETTA E MILANO, OPPURE TELEFONICAMENTE.
Proponiamo TRILOCALE DA ULTIMARE ALL'ASTA!
Codice di riferimento: X26829
Proponiamo TRILOCALE DA ULTIMARE ALL'ASTA, sito al piano primo di una palazzina di sei piani, realizzata nel 2008.
L'immobile, con finiture da ultimare, si trova in zona residenziale ben servita, in contesto di nuove costruzioni.
L'appartamento è composto da soggiorno, cucina, disimpegno, due camere da letto e doppi servizi, oltre che balcone e loggiato, per una superficie totale di 136,92 mq.
Completano la soluzione box doppio e cantina di 3 mq.
IMMOBILE LIBERO / DA ULTIMARE.
Si segnala che eventuali oneri per il completamento ed il ripristino del progetto originario, saranno a cura dell'aggiudicatario.
L'asta è TELEMATICA e vi seguiremo in tutta la procedura.
Trattandosi di un immobile all'asta, IL PREZZO SI RIFERISCE ALL'OFFERTA MINIMA e potrà subire notevoli rialzi!
Vero affare!
No agenzie, no intermediari, no collaborazioni.
Per la partecipazione in asta sara' necessario possedere il 10% di cauzione
Inoltre presso i nostri uffici abbiamo tante soluzioni con caratteristiche simili all'immobile di questo annuncio a prezzi vantaggiosi
Risparmia acquistando all'asta affidati agli esperti del settore, grazie alla nostra esperienza ventennale vi guideremo verso un acquisto sicuro e vantaggioso nel mondo delle aste
Compera all'asta a meno di un affitto. www.consulovest.it
IL NOSTRO SERVIZIO PUÒ ESSERE ATTIVATO PRESSO I NOSTRI UFFICI DI CORBETTA E MILANO, OPPURE TELEFONICAMENTE.
Consistenze
| Descrizione | Superficie | Sup. comm. |
|---|---|---|
| Principali | ||
| Immobile - 1° piano | 137 Mq | 137 Mqc |
| Box/Garage - piano interrato | 40 Mq | 20 Mqc |
| Cantina - piano interrato | 3 Mq | 1 Mqc |
| Totale | 158 Mqc | |







