Rif: X26997
PARABIAGO
MILANO
PER INFORMAZIONI E PER FISSARE UN APPUNTAMENTO IN UFFICIO, CONTATTARCI AL NUMERO 02/97.48. 70.88 WWW. CONSULOVEST. IT
Proponiamo in vendita OTTIMO IMMOBILE SU DUE LIVELLI ALL'ASTA!
Codice di riferimento: X26997
Proponiamo in vendita OTTIMO IMMOBILE SU DUE LIVELLI ALL'ASTA, sito al piano primo e secondo, del "Condominio La Magnolia" realizzato nel 2009.
L'immobile si trova in zona residenziale e ben servita.
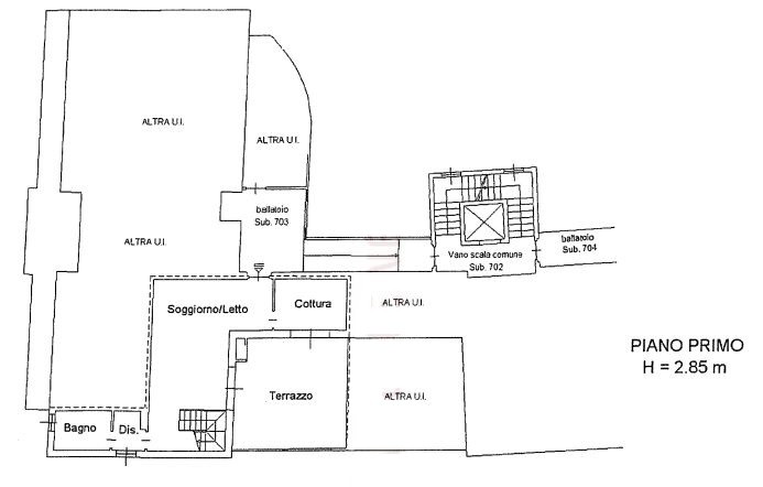
L'appartamento è composto al piano primo da soggiorno con angolo cottura, disimpegno e bagno, per una superficie totale di 60 mq. Presente inoltre terrazzo di 25 mq.
Al piano secondo sottotetto presenti tre vani accessori, disimpegno e bagno, per una superficie di 42 mq. Presente inoltre terrazzo di 5,50 mq.
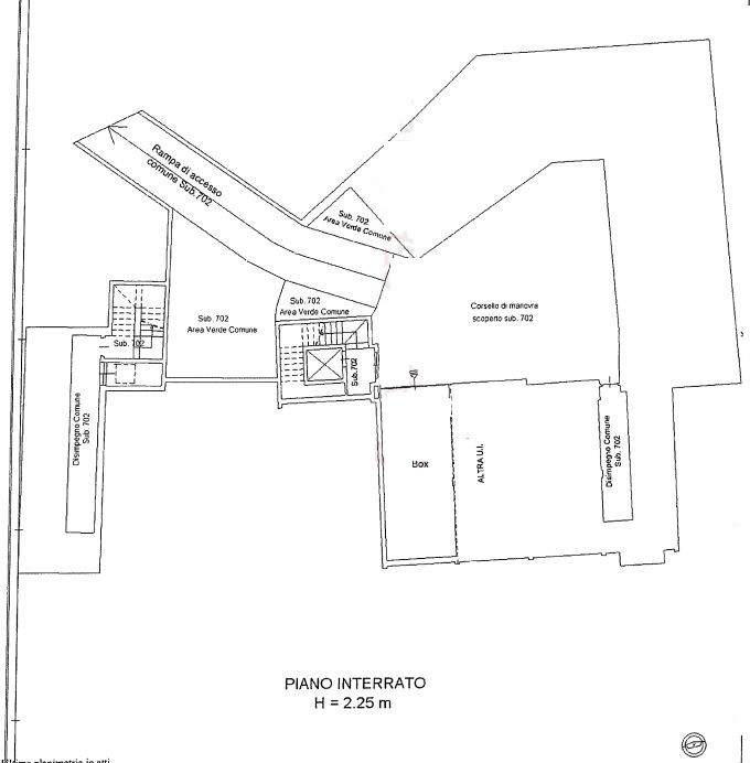
Completano la soluzione cantina di 4,30 mq. e box doppio di 36 mq.
L'asta è TELEMATICA e vi seguiremo in tutta la procedura.
Trattandosi di un immobile all'asta, IL PREZZO SI RIFERISCE ALL'OFFERTA MINIMA e potrà subire notevoli rialzi!
Vero affare!
No agenzie, no intermediari, no collaborazioni.
Per la partecipazione in asta sara' necessario possedere il 10% di cauzione
Inoltre presso i nostri uffici abbiamo tante soluzioni con caratteristiche simili all'immobile di questo annuncio a prezzi vantaggiosi
Risparmia acquistando all'asta affidati agli esperti del settore, grazie alla nostra esperienza ventennale vi guideremo verso un acquisto sicuro e vantaggioso nel mondo delle aste
Compera all'asta a meno di un affitto. www.consulovest.it
IL NOSTRO SERVIZIO PUÒ ESSERE ATTIVATO PRESSO I NOSTRI UFFICI DI CORBETTA E MILANO, OPPURE TELEFONICAMENTE.
Proponiamo in vendita OTTIMO IMMOBILE SU DUE LIVELLI ALL'ASTA!
Codice di riferimento: X26997
Proponiamo in vendita OTTIMO IMMOBILE SU DUE LIVELLI ALL'ASTA, sito al piano primo e secondo, del "Condominio La Magnolia" realizzato nel 2009.
L'immobile si trova in zona residenziale e ben servita.
L'appartamento è composto al piano primo da soggiorno con angolo cottura, disimpegno e bagno, per una superficie totale di 60 mq. Presente inoltre terrazzo di 25 mq.
Al piano secondo sottotetto presenti tre vani accessori, disimpegno e bagno, per una superficie di 42 mq. Presente inoltre terrazzo di 5,50 mq.
Completano la soluzione cantina di 4,30 mq. e box doppio di 36 mq.
L'asta è TELEMATICA e vi seguiremo in tutta la procedura.
Trattandosi di un immobile all'asta, IL PREZZO SI RIFERISCE ALL'OFFERTA MINIMA e potrà subire notevoli rialzi!
Vero affare!
No agenzie, no intermediari, no collaborazioni.
Per la partecipazione in asta sara' necessario possedere il 10% di cauzione
Inoltre presso i nostri uffici abbiamo tante soluzioni con caratteristiche simili all'immobile di questo annuncio a prezzi vantaggiosi
Risparmia acquistando all'asta affidati agli esperti del settore, grazie alla nostra esperienza ventennale vi guideremo verso un acquisto sicuro e vantaggioso nel mondo delle aste
Compera all'asta a meno di un affitto. www.consulovest.it
IL NOSTRO SERVIZIO PUÒ ESSERE ATTIVATO PRESSO I NOSTRI UFFICI DI CORBETTA E MILANO, OPPURE TELEFONICAMENTE.
Consistenze
| Descrizione | Superficie | Sup. comm. |
|---|---|---|
| Principali | ||
| Immobile - 1° piano | 90 Mq | 90 Mqc |
| Box/Garage - seminterrato | 36 Mq | 18 Mqc |
| Totale | 108 Mqc | |







