Rif: X27031
CABIATE
COMO
PER INFORMAZIONI E PER FISSARE UN APPUNTAMENTO IN UFFICIO, CONTATTARCI AL NUMERO 02/97.48. 70.88 WWW. CONSULOVEST. IT
Proponiamo in vendita OTTIMA VILLA A SCHIERA ALL'ASTA!
Codice di riferimento: X27031
Proponiamo in vendita OTTIMA VILLETTA A SCHIERA ALL'ASTA, su tre livelli, edificata nel 1994!
L'immobile si trova in zona principalmente residenziale e ben servita.
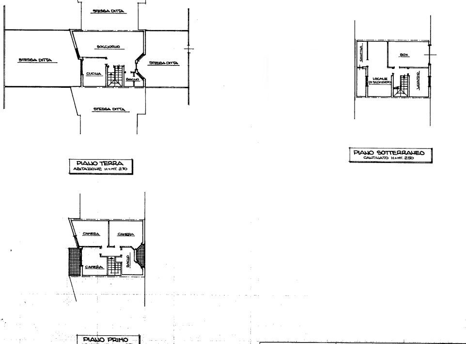
L'immobile è composto al piano terra da ingresso, soggiorno con cucina, disimpegno e bagno;
Al piano primo sottotetto, presenti tre camere da letto, disimpegno e bagno, per una superficie totale di 123,92 mq!
Presenti inoltre due balconi, per una superficie di 7,28 mq!!
Al piano interrato presenti taverna, cantina, bagno / lavanderia e box, per una superficie di 67,28 mq!
Completa la soluzione giardino esclusivo di 110,54 mq.
Trattandosi di un immobile all'asta, il prezzo si riferisce all'offerta minima d'asta e potra' subire notevoli rialzi!
Vero affare!
No agenzie, no intermediari, no collaborazioni.
Per la partecipazione in asta sara' necessario possedere il 10% di cauzione
Inoltre presso i nostri uffici abbiamo tante soluzioni con caratteristiche simili all'immobile di questo annuncio a prezzi vantaggiosi
Risparmia acquistando all'asta affidati agli esperti del settore, grazie alla nostra esperienza ventennale vi guideremo verso un acquisto sicuro e vantaggioso nel mondo delle aste.
Compera all'asta a meno di un affitto. Www. Consulovest. It.
Proponiamo in vendita OTTIMA VILLA A SCHIERA ALL'ASTA!
Codice di riferimento: X27031
Proponiamo in vendita OTTIMA VILLETTA A SCHIERA ALL'ASTA, su tre livelli, edificata nel 1994!
L'immobile si trova in zona principalmente residenziale e ben servita.
L'immobile è composto al piano terra da ingresso, soggiorno con cucina, disimpegno e bagno;
Al piano primo sottotetto, presenti tre camere da letto, disimpegno e bagno, per una superficie totale di 123,92 mq!
Presenti inoltre due balconi, per una superficie di 7,28 mq!!
Al piano interrato presenti taverna, cantina, bagno / lavanderia e box, per una superficie di 67,28 mq!
Completa la soluzione giardino esclusivo di 110,54 mq.
Trattandosi di un immobile all'asta, il prezzo si riferisce all'offerta minima d'asta e potra' subire notevoli rialzi!
Vero affare!
No agenzie, no intermediari, no collaborazioni.
Per la partecipazione in asta sara' necessario possedere il 10% di cauzione
Inoltre presso i nostri uffici abbiamo tante soluzioni con caratteristiche simili all'immobile di questo annuncio a prezzi vantaggiosi
Risparmia acquistando all'asta affidati agli esperti del settore, grazie alla nostra esperienza ventennale vi guideremo verso un acquisto sicuro e vantaggioso nel mondo delle aste.
Compera all'asta a meno di un affitto. Www. Consulovest. It.
Consistenze
| Descrizione | Superficie | Sup. comm. |
|---|---|---|
| Principali | ||
| Immobile - piano terra | 124 Mq | 124 Mqc |
| Balcone - 1° piano | 7 Mq | 2 Mqc |
| Cantina - piano interrato | 67 Mq | 17 Mqc |
| Giardino/Resede | 110 Mq | 11 Mqc |
| Totale | 154 Mqc | |







