Rif: X27059
SAN MARTINO SICCOMARIO
PAVIA
PER INFORMAZIONI E PER FISSARE UN APPUNTAMENTO IN UFFICIO, CONTATTARCI AL NUMERO 02/97.48. 70.88 WWW. CONSULOVEST. IT
Proponiamo in vendita OTTIMO TRILOCALE ALL'ASTA!
Codice di riferimento: X27059
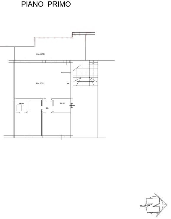
Proponiamo in vendita OTTIMO TRILOCALE ALL'ASTA, sito al piano primo, di un complesso di villette realizzato nel 2008.
L'immobile, internamente da ultimare, si trova in zona principalmente residenziale e ben servita.
L'immobile è composto da soggiorno con angolo cottura, disimpegno, due camere da letto e due bagni, per una superficie totale di 91 mq.
Presente inoltre balcone di 30,90 mq.
IMMOBILE LIBERO / FINITURE DA ULTIMARE.
Si segnala nello stesso contesto la disponibilità di altri due lotti: Un monolocale con offerta minima a partire da Eu. 25.125,00 ed un multilocale con offerta minima a partire da Eu. 81.750,00.
POSSIBILITA' DI ACQUISTO PRE-ASTA E SALDO E STRALCIO!
L'asta è TELEMATICA e vi seguiremo in tutta la procedura.
Trattandosi di un immobile all'asta, IL PREZZO SI RIFERISCE ALL'OFFERTA MINIMA e potrà subire notevoli rialzi!
Vero affare!
No agenzie, no intermediari, no collaborazioni.
Per la partecipazione in asta sara' necessario possedere il 10% di cauzione
Inoltre presso i nostri uffici abbiamo tante soluzioni con caratteristiche simili all'immobile di questo annuncio a prezzi vantaggiosi
Risparmia acquistando all'asta affidati agli esperti del settore, grazie alla nostra esperienza ventennale vi guideremo verso un acquisto sicuro e vantaggioso nel mondo delle aste
Compera all'asta a meno di un affitto. www.consulovest.it
IL NOSTRO SERVIZIO PUÒ ESSERE ATTIVATO PRESSO I NOSTRI UFFICI DI CORBETTA E MILANO, OPPURE TELEFONICAMENTE.
Proponiamo in vendita OTTIMO TRILOCALE ALL'ASTA!
Codice di riferimento: X27059
Proponiamo in vendita OTTIMO TRILOCALE ALL'ASTA, sito al piano primo, di un complesso di villette realizzato nel 2008.
L'immobile, internamente da ultimare, si trova in zona principalmente residenziale e ben servita.
L'immobile è composto da soggiorno con angolo cottura, disimpegno, due camere da letto e due bagni, per una superficie totale di 91 mq.
Presente inoltre balcone di 30,90 mq.
IMMOBILE LIBERO / FINITURE DA ULTIMARE.
Si segnala nello stesso contesto la disponibilità di altri due lotti: Un monolocale con offerta minima a partire da Eu. 25.125,00 ed un multilocale con offerta minima a partire da Eu. 81.750,00.
POSSIBILITA' DI ACQUISTO PRE-ASTA E SALDO E STRALCIO!
L'asta è TELEMATICA e vi seguiremo in tutta la procedura.
Trattandosi di un immobile all'asta, IL PREZZO SI RIFERISCE ALL'OFFERTA MINIMA e potrà subire notevoli rialzi!
Vero affare!
No agenzie, no intermediari, no collaborazioni.
Per la partecipazione in asta sara' necessario possedere il 10% di cauzione
Inoltre presso i nostri uffici abbiamo tante soluzioni con caratteristiche simili all'immobile di questo annuncio a prezzi vantaggiosi
Risparmia acquistando all'asta affidati agli esperti del settore, grazie alla nostra esperienza ventennale vi guideremo verso un acquisto sicuro e vantaggioso nel mondo delle aste
Compera all'asta a meno di un affitto. www.consulovest.it
IL NOSTRO SERVIZIO PUÒ ESSERE ATTIVATO PRESSO I NOSTRI UFFICI DI CORBETTA E MILANO, OPPURE TELEFONICAMENTE.
Consistenze
| Descrizione | Superficie | Sup. comm. |
|---|---|---|
| Principali | ||
| Immobile - 1° piano | 91 Mq | 91 Mqc |
| Balcone - 1° piano | 31 Mq | 9 Mqc |
| Totale | 100 Mqc | |







